Sodyba Šaukėnuose
Kelmės r, Šaukėnai, Juodlės 21.
Kambarių skaičius: 3.
Aukštų skaičius: 1.
Bendras plotas (m²): 59.93.
NAMAS:
1956 m. rąstinis apmūrytas plytomis.
Stogas šiferis.
Perdanga medinė.
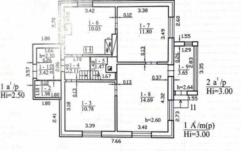
PLOTAI:
Veranda: 3.65 m².
Kambarys I: 14.69 m².
Kambarys II: 11.80 m².
Kambarys III: 10.03 m².
Virtuvė : 10.78 m².
Koridorius: 3.42 m².
Koridorius: 2.11 m².
Sandėlys: 1.47 m².
Sandėlys: 1.98 m².
SVARBU:
Kieme ūkiniai pastatai.
Didelis sklypas.
Asfaltuotas privažiavimas.
VIETA:
Kelmės r, Šaukėnų miestelis, Juodlės 21.
NTA “Alto Turtas”
Tarpininkavimo paslaugos.
Jūsų turto pardavimo – pirkimo administravimas.
Skubus turto pirkimas.
Turto vertinimas.
NT dokumentų tvarkymas.
NT eksperto konsultacijos.
Pastatų pridavimas VTPSĮ.
Visi klausimai, susiję su NT, yra labai svarbūs.
Dažniausiai tai – vienas didžiausių pirkinių gyvenime.
Nesvarbu, norite parduoti, pirkti, ar išnuomoti būstą.
Susisiekite ir mielai Jums patarsiu.
SUSISIEKIME:
Tel: +370 68754252
NT Ekspertas Arvydas
NTA “Alto Turtas”
Vilniaus 92. Šiauliai
Altoturtas.lt


















